- 株式会社エドケンハウス ホーム
- 【北松戸駅】歩18分 栄町5丁目GX志向型住宅仕様モデルハウス

サンテロジェ松戸栄町Ⅵ分譲地内に
GX志向型住宅対応モデルハウス公開中!!
★価格改定しました(2025年10月28日)
・新価格:5,160万円
・旧価格:5,360万円
■所在地:松戸市栄町5丁目
■交 通:常磐線「北松戸」駅徒歩18分
常磐線「馬橋」駅徒歩22分
■制震ダンパーMIRAIE搭載
年間光熱費16万円以上節約可能!超省エネな生活防衛住宅です。
■GX志向型住宅仕様
●断熱等性能等級6(Ua値0.46)
●太陽光パネル搭載
●ハイブリッド給湯器ECO ONE採用

1号棟~光の中庭、リビングガーデンテラスのある家
「何気ない毎日の時間を、かけがえのない「家族の思い出」に変える住まい」
■土地面積:121.36㎡
■建物面積:101.01㎡
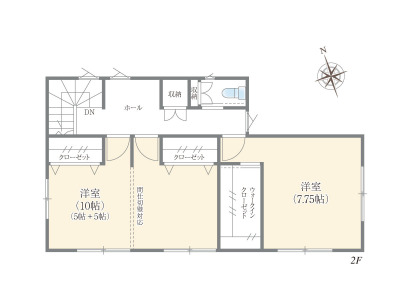
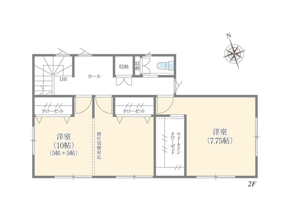
■間取り :3LDK+リビングガーデンテラス
※間仕切り壁対応プラン
■カースペース:2台分 ※1台は軽自動車となります
※本物件完成後、2025年12月上旬までモデルハウスとして使用することを予定しております。

開放感あふれる広々としたLDKと対面キッチンで、家族の会話が自然と生まれる空間設計。 さらに、壁に囲まれたプライベートな中庭(リビングガーデンテラス)は、周囲の視線を気にせず、家族だけの特別な時間を楽しめる贅沢な空間に。

家族の時間をもっと豊かにする「リビングガーデンテラス」で、何気ない日常がかけがえのない思い出に変わります。
朝はカフェのように心地よい空間で朝を楽しみ、昼はお子様がのびのびと遊ぶスペースに、夜は星を眺めながら語らうひととき。






























































