- ホーム
- 中古住宅をエリアから探す
- 柏市
- 南逆井
- 南逆井中古住宅





■JR常磐線「上野」駅まで39分、JR「東京」駅まで46分で都心へのアクセスもラクラク!
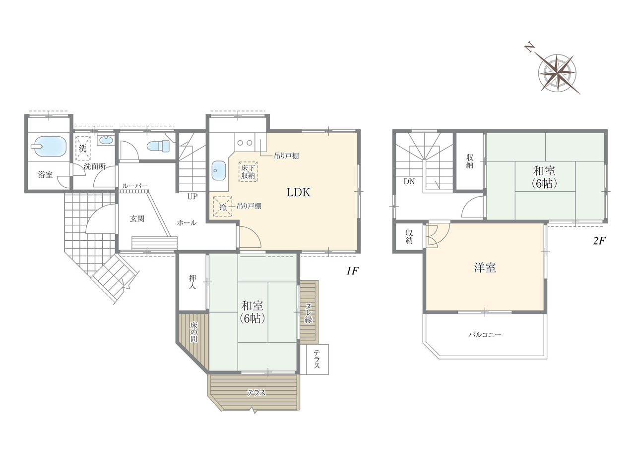
■スペースを最大限に活かした、片付く住まい。
■スペースを最大限に活かした、片付く住まい。
物件詳細情報
物件No.20000432857
| 所在地 | 千葉県柏市南逆井6丁目27-1 | ||
|---|---|---|---|
| 交通 | 東武野田線「逆井」駅徒歩33分 東武野田線「高柳」駅バス12分 バス停「なか町第2公園」停歩3分 東武野田線「高柳」駅徒歩31分 |
||
| 間取 | 3LDK | ||
| 土地面積 | 94.47m² 公簿 | ||
| 建物面積 | 72.11m² | ||
| 構造・規模 | 木造 2階建て | 築年月 | 1978年12月築 |
| バルコニー | 南西向き | 地目 | 宅地 |
| 用途地域 | 第一種低層住居専用地域 | 建ぺい率 | 50% |
| 容積率 | 100% | 都市計画 | 市街化区域 |
| 駐車スペース | 1台 | 現況 | 居住中 |
| 引渡時期 | 相談 | 引渡条件 | 現況渡し |
| 権利種類 | 所有権 | 接道 | 西側4M公道に接道 北東側4M私道に接道 |
| 小学校区 | 逆井小学校(1090m) | 中学校区 | 逆井中学校(1730m) |
| 取引態様 | 専任媒介 | ||
| 設備 | 公営水道、本下水、都市ガス | ||
| 備考・制限等 | ※建物傾斜有り | ||
こだわり項目
角地高台閑静な住宅地全居室収納テラス浴室に窓公園800m以内通風良好
- ※価格は物件の代金総額を表示しており、消費税が課税される場合は税込み価格です。(1,000円未満は切り上げ。)
税率は引き渡し時期により異なりますので、各物件の詳細につきましてはお問い合わせください。 - ※敷地権利が借地権のものは価格に権利金を含みます。
- ※制作中に内容が変更される場合もありますので、あらかじめご了承ください。
- ※購入の前には物件内容や契約条件についてご自身で十分な確認をしていただくようにお願いいたします。
- ※完成予想図はいずれも外構、植栽、外観等実際のものとは多少異なることがあります。
- ※CG合成の画像の場合、実際とは多少異なる場合があります。
周辺地図
周辺施設一覧
- ショッピングセンター
- スーパー
- コンビニ
- ドラッグストア
- ホームセンター
- 飲食店
- その他店舗
- 商店街
- 大学
- 専門学校
- 高校・高専
- 中学校
- 小学校
- 保育園
- 幼稚園
- 公民館・児童館
- 病院
- 郵便局
- 役所
- 図書館
- 金融機関
- 警察・消防
- 趣味・娯楽施設
- 公園・運動施設
- 周辺の街並み
- 駅
- その他
お問い合せ先
- 株式会社エドケンハウス
- お電話でのお問い合わせは
047-366-3111「ホームページを見た」とお問い合わせください - 千葉県松戸市上本郷3785
- 免許番号:千葉県知事免許(7)第012392号














